インフォメーション
2026-01-13 11:58:00
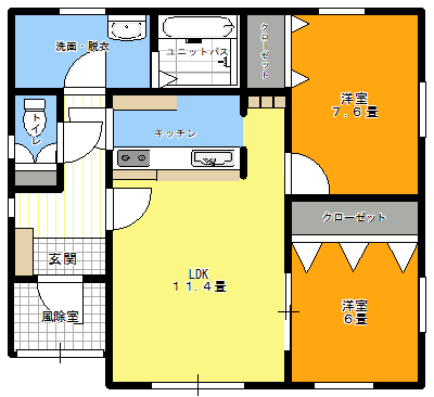
モアパレス ゲストハウスK棟
2LDK(72.87㎡) 戸建
令和8年1月30日退居 2月上旬に内見可能 入居も可
ペット可🐶
猫は不可 その他は応相談
エアコン ガスハイブリッド暖房給湯器
駐車場 2台
家賃 85,000円
必要な費用(敷金、仲介手数料なし)
礼金 1ヶ月分(85,000円)
家賃 日割り家賃と前家賃
住所 標津郡中標津町東35条北3丁目1-1モアパレス ゲストハウスJ棟
モアパレス モンテローザ 103
1LDK(38.9㎡)
2月11日退居予定 2月中旬に内見可能 入居も可
ペット可🐶
猫は不可 その他は応相談
エアコン ガスストーブ ガス給湯器
駐車場 1台
家賃 50,000円
必要な費用(敷金、仲介手数料なし)
礼金 1ヶ月(50,000円)
家賃 日割り家賃と前家賃
住所 標津郡中標津町東22条東6丁目7-10




![IMG_3558[1].JPG](https://cdn.goope.jp/218087/260115101540-69683fbc98315_l.jpg)
